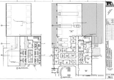
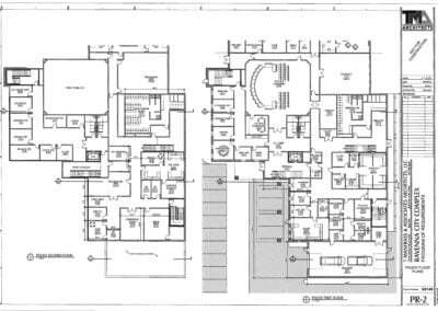
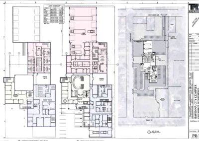
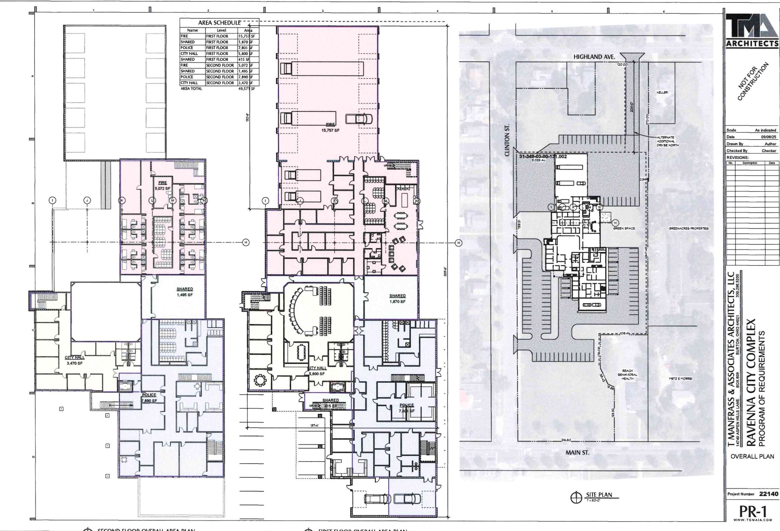
Ravenna, Ohio
The Pulse of Portage CountyPreliminary Drawings for new PD, FD and City Hall
Police Department building
The current Ravenna Police Department was originally built in 1922 as a multi-purpose structure. It contained the Police Department, Fire Department, and City Hall. With 13-inch exterior walls and the “latest” in fireproof construction (asbestos), it was built to be completely fireproof. Unfortunately, that means that it is largely 21st-century-proof as well. Wireless signals are blocked in most areas of the building.
Renovations of the Police & Fire in 1979 were designed to make the building more accessible, with an elevator being installed along with a wheelchair accessible ramp. With the construction of the new Fire Department next door, Police Dispatch was able to expand from one small room to a more secure and self-contained Dispatch Center.
The Police Department Squad room, on the 2nd floor, is where our officers stop by to write reports and make calls when not out on the road. It was last remodeled three (3) years ago. Our Dispatch Center, which dispatches for Ravenna City police, Marlboro Township police, Ravenna City Fire, and several other agencies in Portage County, occupies what used to be part of the old apparatus bay when the building was constructed in 1922. With four (4) stations, of which two (2) are staffed 24/7, dispatchers are trained multi-taskers. They are the “thin gold line” of law enforcement and EMS services.
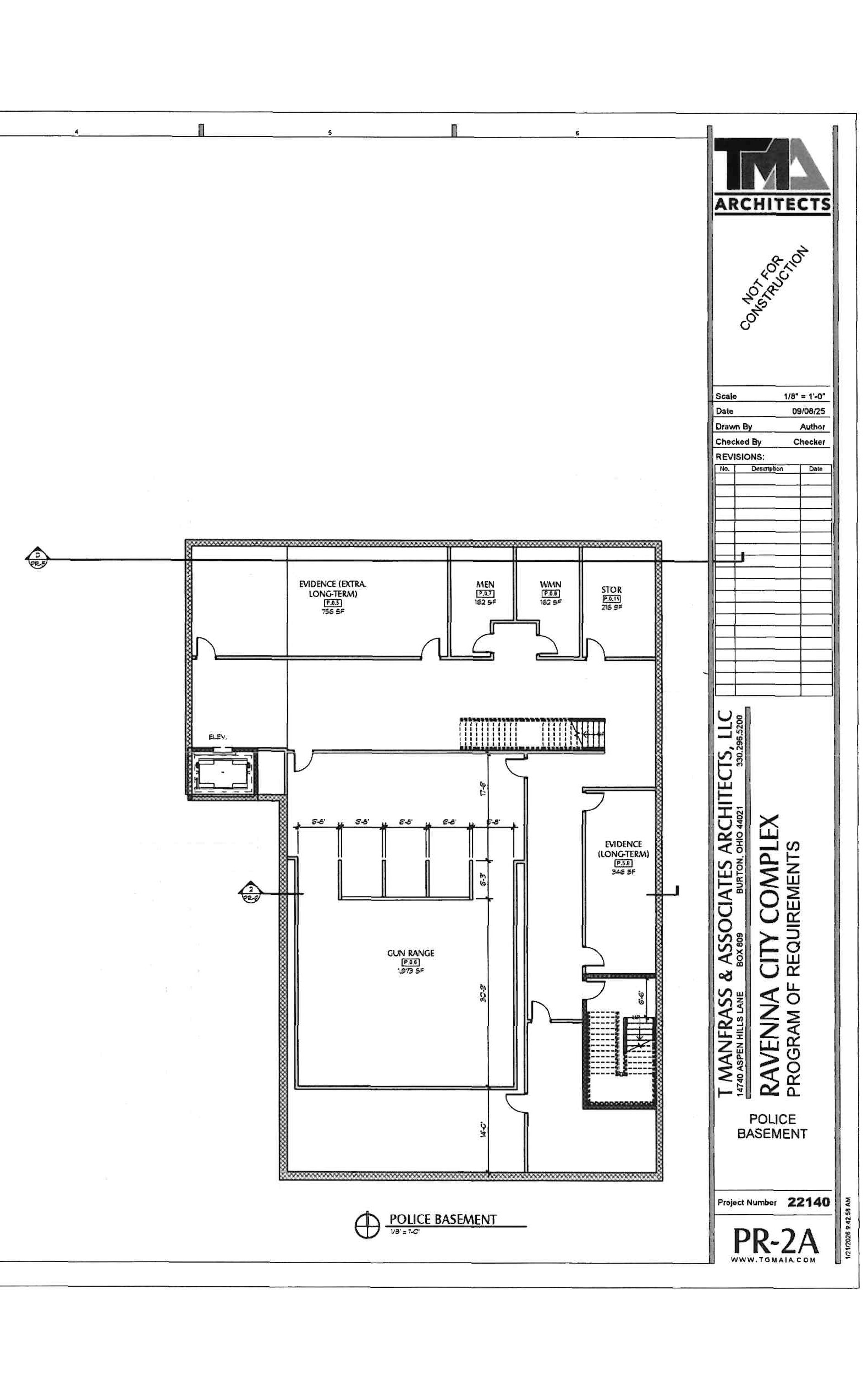
The police station used to occupy the basement of 200 S. Park Way from the 1920’s up until the major remodel in 1979. It is divided into two (2) sections: prisoner lockup/meter repair, and what is now records/evidence storage. Lockup featured four (4) cells, each with three (3) bunks, for housing prisoners. Due to deteriorating conditions and rising expenses, inmates haven’t been kept here since 1977. The old cells remain but are now home to storing things that aren’t used very often. Historically, it is really neat, but functionally, it is not usable space.
Some people may remember when the city had parking meters. The room where these meters were repaired is in the basement of the Police Department. There used to be a darkroom for photo developing, along with lockers and a squad room in what is now the records/evidence section of the station, which is also in the basement. Multiple locked rooms contain some of the various 30,000 pieces of evidence and property that this station has to retain.
There is a picture below of what is known as the “short stairs”. Those stairs led to the “mechanical” area of the basement. In the picture, you will see the old IT room, with the records area directly behind it. At the end of the hallway is more locked evidence/property. Down a dimly lit corridor to the right and left, you will find the old boiler room. Architecturally, it is one of the most interesting parts of the station, but the presence of mold, mildew, and a hundred-plus years of dust makes this a largely inaccessible area where the PD stores things that aren’t needed that often.
A records storage room, where papers are kept that they simply aren’t allowed to dispose of, consists of FBI fingerprint cards, payroll sheets from the 1970’s, and copies of reports from before the station used computers. Sometimes, the agency or individual may want an arrest report from 1965. It is probably stored in the basement, and it is the Record Clerk’s job to find it.
Scroll through the pictures below to see what is described above.
Fire Department building
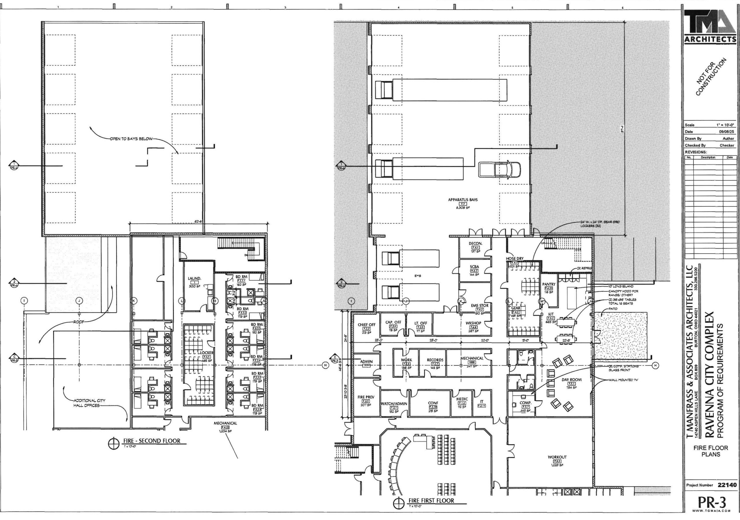
Fire Station Facility Overview
The Ravenna Fire Department operates from a facility originally constructed in 1922 and expanded in 1979. While it has served the community for decades, the building was not designed for today’s fire and EMS operations, staffing levels, or equipment.
Due to limited space, essential daily functions occur within shared areas of the station, including apparatus storage, training, gear handling, laundry, and administrative work.
The current facility combines the original 1922 structure with an addition completed in 1979.
Apparatus Bay and Daily Operations
The apparatus bay serves multiple functions beyond housing emergency vehicles. It is also used for fitness and training activities, laundry operations, and equipment and supply storage.
As a result, firefighters and paramedics routinely train, handle equipment, and maintain gear in areas where diesel exhaust is present. Diesel exhaust is recognized as a carcinogen, and minimizing exposure is an important consideration in modern fire station design.
The apparatus bay houses emergency vehicles while also serving as a workspace for daily operations.
Training and fitness activities occur in close proximity to fire apparatus and operational equipment.

Laundry facilities are located within the same space as emergency vehicles and equipment.
Living Quarters
The department staffs 24 firefighters/paramedics assigned across three shifts: A, B, and C. Each shift consists of eight personnel who work 24 hours on duty, followed by 48 hours off duty.
The bunk room contains seven beds and lockers for each employee. An additional bed is located in the Fire Chief’s office and is used by the on-duty Captain. All available sleeping spaces are utilized during normal operations.
The shared bunk room contains sleeping space for on-duty personnel.

Each bed is used by multiple firefighters and paramedics across different shifts.
The Fire Chief’s office includes a fold-down bed used by the on-duty Captain.
Kitchen and Daily Living Space
The kitchen serves as the primary dining and gathering space for on-duty personnel and is also used for department meetings and tabletop training.
Each shift consists of eight personnel; however, additional staff, including administrative personnel, the Fire Chief, Fire Marshal, and Administrative Assistant, may also be present in the building. As a result, up to 11 individuals may utilize the kitchen and dining area at one time.
The dining table does not accommodate all personnel at one time.
The kitchen serves as the primary dining and gathering space for on-duty personnel.
Administrative, Storage, and Support Space
Office space for command staff, fire prevention, and administrative functions is limited and shared. The current building also does not provide sufficient space for all equipment, apparatus, and supplies required for daily operations.
As a result, equipment is stored throughout the station, and some vehicles are stored outside or at other locations.
Command staff utilizes a shared workspace for reports and daily operations.
Administrative and Fire Prevention functions share a common workspace.
Welcome to Ravenna, Ohio
Ravenna’s convenient location in the heart of the northeast Ohio industrial and technology corridor is minutes from cities, interstate highways and two large state universities – perfect commuting distance to greater Cleveland, Akron, Youngstown and surrounding communities.
The City of Ravenna has enacted a one-year Moratorium on storage units, storage facilities, storage pods and self-storage establishments. Click here for Ordinance No. 2025-020 for further details.
News & Events
The City of Ravenna is excited to announce the attraction of a new company to our community – Project Light.
Project Light has provided lighting for four and five star hotels, restaurants, casinos and homes and is a premier choice for architects, designers, lighting showrooms and purchasers for manufacturing custom light fixtures. Please contact Guy McElhaney at 330.688.9000 x310 for all of your lighting needs.
News
Commercial Lighting Incentive
If your business is commercial or industrial and you are a customer of OhioEdison/FirstEnergy, you can take advantage of the following lighting incentive for installing LED lighting in your facility.
Report Streetlight Outage
Click here to report a streetlight outage.
Low-Interest Loans Available
Low-Interest loans are now available to Portage Homeowners, Small Businesses, and family farms. A new partnership will provide low-interest loans for improvements to homes, businesses and farms. See full article from the Record Courier and this brochure for more...
New Business News: Economic Activity in Ravenna
If you’re thinking – what a great time to invest in Ravenna! – then you are in good company. There’s a lot of economic activity in and around our city. Check out these recent growth and success stories! New Project Brings New Opportunity Here’s a big project from...
Video: 2022 Heritage Ohio Film Festival: Save Ohio’s Treasures – Riddle Block 9
Rating Action: Moody’s upgrades City of Ravenna, OH’s issuer rating to A1 from A3
The City of Ravenna, OH is proud to announce that Moody’s Investors Service recently upgraded the issuer rating for the City of Ravenna from A3 to A1. This double rating increase is typically not seen by Moody’s, however, the financial strengthening and economic...
Neighborhood Revitalization for Low-Income Individuals
The Neighborhood Revitalization in Kent, OH has a program available for low-income individuals. Please click here for more details.
Portage County Ohio Means Jobs
The Portage County Ohio Means Jobs is a great workforce solutions resource. To learn more about how OMJ can assist your business workforce needs, download the OMJ Business Resource Guide. DOWNLOAD THE RESOURCE GUIDE
Events
Welcome to The Main Street Mile!
The Main Street Mile is a curated one-mile loop that encompasses the heart of downtown Ravenna. The City held a community celebration for the grand opening of the new Main Street Mile on Saturday, October 23rd. To hear more about the Main Street Mile, listen to the Portage County Safety Council’s podcast featuring Chelsea Gregor discussing the creation of this new walking path.
Marlene Watt/Pot O' Gold 5K Walk
Join us on March 14, 2026 for the 20th annual Marlene Watt Memorial POT O’ GOLD Poker run/walk. We will start at the English Pub at 320 E. Main St. and make our way to different locations throughout downtown Ravenna to “pick up” our poker cards. The top poker hand will win $500. But the fun doesn’t stop there… oh by golly it sure doesn’t! We’ve got shenanigans and prizes for you! Enjoy the new Shamrock Scavenger Hunt and our basket raffle. So come join the fun and support a great cause and celebrate St Patty’s Day! All our friends who register by 2/19/26 will receive a commemorative t-shirt…. and everyone receives a finishers medal! Same Day Registration: 7:15 – 8:15 a.m. Goodie Bag pick up after 1pm 3/13 at the RAC or Same day 7:30-8:30am at English Pub. Events Starts: 9:00 a.m. Awards ceremony: 10:30 a.m. Refreshments, music, and goody bags will be available to everyone YOU MUST REGISTER NO LATER THAN FEBRUARY 19th TO BE GUARANTEED AN EVENT T-SHIRT.
The history behind the Marlene Watt Memorial Event stems from Marlene Watt who was an advocate for the youth in our community by serving as the secretary at Carlin Elementary School. All proceeds from the Marlene Watt Memorial Event will go towards the Ravenna Parks and Recreation Youth Scholarship Fund. Since the inception of the Ravenna Parks and Recreation Youth Scholarship Fund many children have been able to attend camp, sports and other great activities who could not have otherwise afforded to do so. The importance of youth recreation can’t be overstated. Recreational activities help develop decision-making skills, cooperative behaviors, positive relationships and empowerment. They learn to act fairly, plan proactively, and develop a moral code of behavior. This play also helps enhance their cognitive and motor skills. Participants tend to be more active, popular, calm, resourceful, attentive and cooperative. Recreation also provides children the chance to learn, consolidate, and practice the skills necessary for further growth and learning. Independent goal pursuits, such as looking for fun and enjoyment, increased participants’ goal attainment in other areas (Estes and Henderson, 2003). This event begins at 9am at the English Pub. Parking lot closes at 8:40am. All walkers/ runners will line up by 8:50 for instruction and send off.
Easter Eggstravaganza
The Parks & Recreation department will be hosting an Easter Egg Hunt on Saturday, April 4, 2026, at 10:00 a.m. The event will be held at City Park, located at 165 Oakwood St., Ravenna, OH 44266. They will have games and prizes, crafts, Touch-A-Truck, meet the Easter Bunny and hunts for ages 1-18.
For more information, please call the Ravenna Parks & Recreation department at (330) 296-2864.
Ravenna Rocks Series
This Rock and Roll concert is a FREE community event on July 25th 2026, in Ravenna, OH. Family friendly! live DJs, Opening Acts, Headliners, Food Trucks & Vendors! Jeep show! Kids Zone and much more!!! Home of the voice of Ravenna singing competition!!!!!! This event is being put on by the Ravenna Rocks LLC. For more information, please call 330-577-4040, or via email at: ravennarocksinfo@yahoo.com
Drive-Thru Trick or Treat at City Park
There will be a Drive-Thru Trick or Treat out at City Park on Saturday, October 24, 2026, from 10am – 12pm. The event is FREE although you do have to register to participate. To register for this event, click here to be taken to their website. We encourage everyone to get into the spirit by dressing up and having fun! Happy Halloween!!!
Ravenna Chamber of Commerce Halloween Walk & City-wide Trick or Treat
The Ravenna Chamber of Commerce is having their Halloween Walk again on Saturday, October 24, 2026, from 12 p.m. – 3 p.m.
The City of Ravenna will be having their Trick or Treat after the Halloween Walk, from 3 p.m. – 5 p.m.
Midnight Madness
The Ravenna Area Chamber of Commerce will be having their Midnight Madness again on November 27, 2026, from 5:00 p.m. – 10 p.m. Come downtown to watch the parade and then go into the area to do some local shopping with our Downtown Merchants.
Recycling of appliances, tires, etc. with the PCSWD
Click on the link below to find out what you can recycle at the Portage County Solid Waste District.
Committee Meeting followed immediately by a Special Council Meeting
Regular Council Meeting
Committee Meetings
Regular Council Meeting
Regular Council Meeting
Economic Development
We’re just minutes from major Northeast Ohio & national highways and rail transportation.
The City of Ravenna can help you maximize these business benefits in many ways, including:
- Helping to secure locations from the spacious industrial parkway to historic downtown
- Expediting tax abatements for historical properties
- Introducing you to a business, financial and ready-to-work labor community
- Connecting you to high quality housing to meet all budgets
- Making your business-community relationship seamless and successful
Great Reasons to Love Ravenna
Ravenna Housing
Appealing to a broad range of tastes, ranging from historic homes to new, contemporary developments all within a five square mile area.
Ravenna Recognizes Good Citizens
Ravenna’s Rich History
Ravenna is Family-Friendly
Ravenna is Home to the Port Authority
Ravenna's Historical Buildings
Neighborhood Development Services Home Improvement Grants
As a full-service community development catalyst, Neighborhood Development Services (NDS) facilitates strong community relationships, supports resident-driven groups, and develops socially-conscious businesses to drive communities toward a vibrant future.
NDS’ services include housing rehabilitation, homebuyer education, downtown revitalization, economic development, financing and job creation, revolving loan fund administration, project administration, grant implementation, and real estate development.
For further assistance with Fair Housing or information on how to file a complaint please contact:
Lisa Reeves, CDBG Specialist
Portage County Regional Planning Commission
449 South Meridian Street, 6th Floor, Ravenna, Ohio 44266
Phone: (330) 297-3613
Email: lreeves@pcrpc.org

Residents
Essential information about everyday amenities, special events, park and rec activities, and more.

Business
Development resources for the enterprises that serve greater Ravenna or want to locate here.

Departments
Officials and legislators. Meeting minutes. Boards, city services, permits, ordinances and more.

Community
Need More Information?
The City of Ravenna welcomes your questions, comments and concerns.
We promise to respond promptly.










